Превод на идея за строеж, проект в визуализация и концептуални чертежи.
Предпроектни концепции, пространствени чертежи и визуализации по идея на клиента
Услуга, насочена към ясно оформяне и представяне на бъдеща идея преди преминаване към същинско проектиране или изпълнение. Подходяща за комуникация с проектант, архитект, дизайнер, изпълнител или строител, когато е необходимо идеята да бъде подадена в разбираем, визуално ясен и работещ вид.
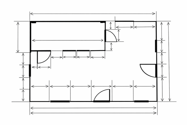
Изготвят се концептуални предпроектни чертежи, пространствени разработки и визуализации, които помагат да се уточнят обем, композиция, разположение, детайли и цялостно усещане на проекта още в началния етап. Това улеснява обсъждането, вземането на решения и последващата работа по реализацията.
При необходимост се разработва и цялостен проект, включващ освен дигитална концепция и визуализация, също изработка на реалистичен пространствен диорамен модел или самостоятелен физически прототип на идеята. Подходящо както за индивидуални идеи и частни пространства, така и за търговски, изложбени, тематични и авторски проекти.
Услугата е от полза най вече когато клиентът знае какво иска, как го иска но просто не може да го обясни достатъчно ясно и разбираемо на проектанта, архитекта, строителя майстор.











